شقة للبيع في بيت الوطن التجمع...




تفاصيل العقار
فرصة رائعة لامتلاك شقة للبيع في بيت الوطن – التجمع الخامس داخل واحد من أرقى وأميز الأحياء في القاهرة الجديدة.
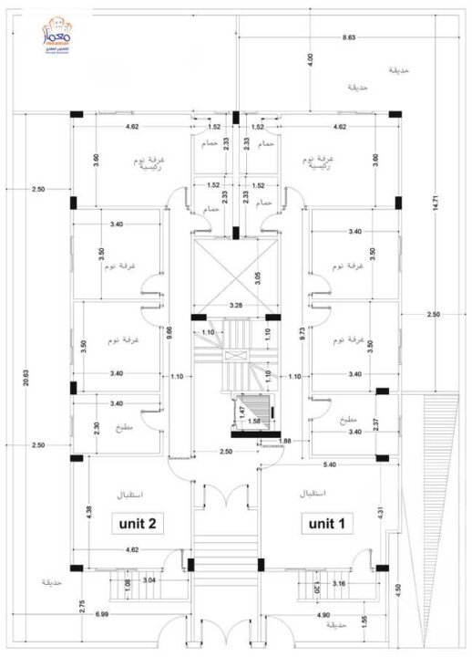
تقع الشقة بمساحة 255 متر، وتتكون من 4 غرف نوم و3 حمامات، مع تصميم عصري عملي يوفر الراحة والخصوصية للعائلات الكبيرة. الشقة في موقع مميز، تاني صف من منطقة الـView Zone، ما يمنحها تهوية وإطلالة ممتازة.
يمتاز موقع الشقة بسهولة الوصول إلى أهم المحاور في القاهرة الجديدة، بالإضافة إلى قربها من النوادي والمدارس والجامعات الدولية، مما يجعلها اختيارًا ممتازًا للسكن أو الاستثمار. المنطقة مخدومة بالكامل وتتمتع ببنية تحتية قوية، ما يعزز من قيمة العقار مستقبلًا.
السعر المطلوب 4,845,000 جنيه، مع نظام تقسيط مرن، والشراء مباشر من المطوّر بدون أي تعقيدات.
إذا كنت تبحث عن شقة بمساحة واسعة، تصميم عملي، وموقع متميز داخل التجمع الخامس، فهذه واحدة من أفضل الفرص المتاحة الآن في بيت الوطن.
